Portable UAS Tailhook Arrest System for Austere Conditions






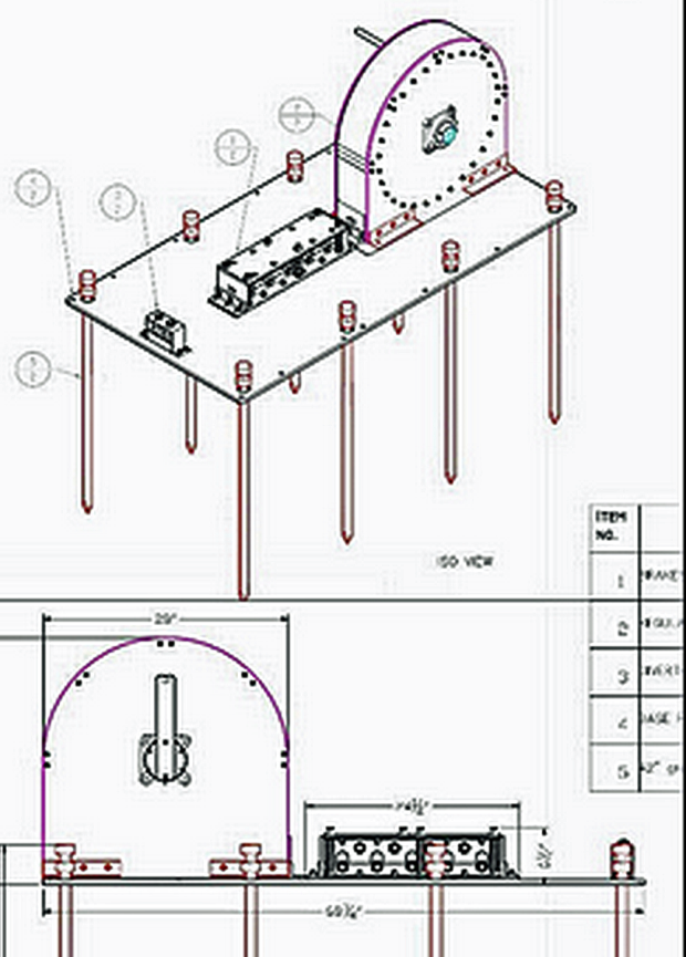
UAS Asset Recovery Management, LLC has developed a combination of short stroke landing systems for fixed wing UAV’s as small as 10 kg upward to 3200+ kg. Each system can be custom configured for the individual application. One combination includes a tailhook system with a deceleration regulator. This combination has been tested up to 3200 kg at 60 kt with a deceleration stroke inside of 75 meters and an average applied g force under ½ g. The short-field arresting system for large UAS (500lbs and up) can arrest 3,200lb aircraft landing at 65kts in 200 feet. It can be deployed by 2 or 3 operators in 20 minutes and reset in 10. It is designed for austere conditions and is scalable for larger aircraft. For details, visit Uasarm.com.
Thanks to CDR David Place (USN/Ret), davidplace47[at]gmail[dot]com, and Robin E. Alexander, President ATC, alexander technical[at]gmail[dot]com, for their assistance with this report, the background for which appeared in their # 23 - 4 -31 MARCH 2023 edition of the UNMANNED SYSTEMS NEWS (USN).
David distributes the USN, a free, comprehensive newsletter in PDF format every week or two, as well as serial news flashes, from which this NREF news update was sourced. To be included in his distribution, simply send a subscribe request to davidplace47[at]gmail[dot]com.
